一棟利用可能!総面積2,089.31坪【サスセンター】

本日は、「東陽町駅」徒歩2分のサスセンターをご紹介します。

地下1階~地上5階の一棟利用可能物件です!

▼4階執務室

IMG_20190208_135202.jpg

中央に柱はなくレイアウト効率の良い区画です。

IMG_20190208_135208.jpg

2019年1月個別空調更新済み

▼1階執務室

IMG_20190208_135555.jpg

▼地下1階

IMG_20190208_135731.jpg

地下には13.34坪の窓なし区画があります。天高は3,000mm以上と高い空間です。

▼共有部

IMG_20190208_135648.jpg

1階の給湯スペース

IMG_20190208_135306.jpg

内階段は2か所ございます。

IMG_20190208_135259.jpg

基準階の給湯エリア。広々とした空間です。

IMG_20190208_135248.jpg


▼外観

IMG_20190208_140210.jpg

1階にカフェが入っています。

IMG_20190208_140338.jpg

★募集区画★
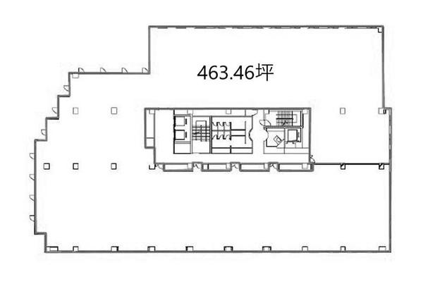
サスセンター基準階平面図.jpg

※4階平面図

5階 285.42坪
4階 463.46坪
3階 477.34坪
2階 491.22坪
1階 358.53坪
地下1階 13.34坪
※契約面積はトイレ・給湯室等の共用部面積を含みません。
※募集状況は日々変動しますので、予めご了承ください。


★物件概要★
所在地:江東区東陽2-4-24
交通: 東京メトロ東西線「東陽町」駅 徒歩2分
構造: SRC
竣工: 1989年3月
その他:個別空調/OAフロア


★お問合わせ★
募集状況や賃料等、条件詳細はお問い合わせください!
℡:03-3215-7857 リーシング部